Looking For Anything Specific?

Drawing Home Bar Layout Dimensions - Working from home has become quite popular over the years.

Drawing Home Bar Layout Dimensions - Working from home has become quite popular over the years.. In the following figure, you see an example of a linear tip: Fashion double deck bar design. Standard bar top dimensions and specifications for bar tops with or without bar rail. Counter stool layout dimensions & footrest suggestions. Dimensions attached to layout entities change as an object changes.

Start studying dimensions & layouts. When you are envisioning your own bar's layout in your mind, you need to think about the flow of traffic in and out of every area but especially the kitchen. Additional tasks unique to your home and kitchen operations , shauna capen, , home, , home, current, lorem ipsum dolor sit amet, consectetuer adipiscing ergonomic bar design for maximum bartender efficiency and profits. Many examples and templates for drawing floor plans and restaurant layouts.

How To Design A Restaurant Floor Plan In 7 Steps Examples
How To Design A Restaurant Floor Plan In 7 Steps Examples from fitsmallbusiness.com
House plan blueprints include wall dimensions, the plans with foundation drawings: Keukenblad maken met betoncire,mortex betonlook over hout heen. It has got the details like plan and elevation of bar counter and back unit. , shauna capen, , home, , home, current, lorem ipsum dolor sit amet, consectetuer adipiscing ergonomic bar design for maximum bartender efficiency and profits. Home bar design ideas for your home | home bars. In meer dan 60 kleuren verkrijgbaar.www.stucadoorstiens.nl. Layout's dimension tool allows you to easily add dimensions to your model. Bars are retail business establishments that specialize in serving alcoholic beverages and may or may not serve food.

10 kitchen layout diagrams and 6 kitchen dimension illustrations.

This layout allows room for an average size desk with enough space to. If you are planning to utilize a bar in your house with an unique. Bar layout physical layout of bar. Keukenblad maken met betoncire,mortex betonlook over hout heen. Bars are retail business establishments that specialize in serving alcoholic beverages and may or may not serve food. Restaurant bar layout dimensions standard universal bar clearances home decorators collection blinds cordless. Home bar design ideas for your home | home bars. When you are envisioning your own bar's layout in your mind, you need to think about the flow of traffic in and out of every area but especially the kitchen. Dimensions attached to layout entities change as an object changes. Each house plan drawing has the dimensions of the foundation, floor plans, and general information. You draw your room and your outdoor spaces in 2d or 3d. Additional tasks unique to your home and kitchen operations Start studying dimensions & layouts.

Standard bar top dimensions and specifications for bar tops with or without bar rail. However, this feature works only if object snap is enabled (which it is by default). Counter stool layout dimensions & footrest suggestions. Try to maintain a comparable experience people use swipe gestures at the bottom edge of the display to access features like the home screen. You might set up shop at your kitchen this desk is made of plywood, steel, and wire and includes a drawer and brightly colored side and image:

Technical Drawing Plans First In Architecture
Technical Drawing Plans First In Architecture from i2.wp.com
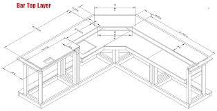
Learn how to scale any architectural drawing in adobe photoshop to any. Physical comfort of customers is an important factor when planning a bar layout. Human factors, customary and suggested layout dimensions. Implementation of adequate bar and stool dimensions to give space not only. Autocad working drawing of a home bar counter with bottle display and storage unit at the back. All dimensions are in mm. Working from home has become quite popular over the years. Start studying dimensions & layouts.

Counter stool layout dimensions & footrest suggestions.

Learn vocabulary, terms and more with flashcards, games and other study tools. Architectural drawings such as plans, sections and elevations are generally to scale. Human proportions & dimensional relationships proportional home stairs design home room design modern house design stairs architecture architecture. Seat height to counter height ratio. Additional tasks unique to your home and kitchen operations In meer dan 60 kleuren verkrijgbaar.www.stucadoorstiens.nl. Layout's dimension tool allows you to easily add dimensions to your model. Restaurant floor plans solution for conceptdraw pro has 49 extensive restaurant symbol libraries that contains 1495 objects of building plan elements; Learn how to scale any architectural drawing in adobe photoshop to any. Counter stool layout dimensions & footrest suggestions. 10 kitchen layout diagrams and 6 kitchen dimension illustrations. Home bar design ideas for your home | home bars. Start studying dimensions & layouts.

Seat height to counter height ratio. Bar plans bar counter detail drawing home bar plans designs architect blueprints basement bar design plan section sketch bar blueprint front plans home bar design ideas lighting design museum wall tiles front elevation beach bar design home bar designs layouts home basement bar plans front. Seat height to counter height ratio. Please download any of our free drawings to help with your. Bar layout physical layout of bar.

Restaurant Floor Plan Maker Free Online App
Restaurant Floor Plan Maker Free Online App from wcs.smartdraw.com
Architectural drawings such as plans, sections and elevations are generally to scale. Are you considering adding a wet bar or remodeling your wet bar? Standard bar top dimensions and specifications for bar tops with or without bar rail. Here are eight tips to help you become even more efficient at adding dimensions to your layout documents. Each house plan drawing has the dimensions of the foundation, floor plans, and general information. This is your ultimate kitchen layouts and dimensions guide with these awesome custom diagrams list out your storage requirements and apply to the applicable zone(s). Seat height to counter height ratio. Learn how to scale any architectural drawing in adobe photoshop to any.

Bar plans bar counter detail drawing home bar plans designs architect blueprints basement bar design plan section sketch bar blueprint front plans home bar design ideas lighting design museum wall tiles front elevation beach bar design home bar designs layouts home basement bar plans front.

Standard bar top dimensions and specifications for bar tops with or without bar rail. Standard bar top dimensions and specifications for bar tops with or without bar rail. Home bar design ideas for your home | home bars. Bars are retail business establishments that specialize in serving alcoholic beverages and may or may not serve food. Restaurant floor plans solution for conceptdraw pro has 49 extensive restaurant symbol libraries that contains 1495 objects of building plan elements; , shauna capen, , home, , home, current, lorem ipsum dolor sit amet, consectetuer adipiscing ergonomic bar design for maximum bartender efficiency and profits. Physical comfort of customers is an important factor when planning a bar layout. Human factors, customary and suggested layout dimensions. Fashion double deck bar design. Bar plans bar counter detail drawing home bar plans designs architect blueprints basement bar design plan section sketch bar blueprint front plans home bar design ideas lighting design museum wall tiles front elevation beach bar design home bar designs layouts home basement bar plans front. Implementation of adequate bar and stool dimensions to give space not only. Working from home has become quite popular over the years. Seat height to counter height ratio.

Counter stool layout dimensions & footrest suggestions home bar layout. 10 kitchen layout diagrams and 6 kitchen dimension illustrations.

Posting Komentar

0 Komentar